ERSAN OTEL VE REZİDANS

Ersan Otel ve Rezidans projesi, modern yaşamın konforunu, Ege kıyılarının huzuruyla buluşturan özel bir tasarım yaklaşımıyla hayata geçirilmiştir. Mimari kurguda; açık planlı, ferah iç mekânlar ile doğal ışığı maksimum seviyede içeri alan geniş cam yüzeyler ön plandadır. İç mekânda kullanılan doğal taş, ahşap dokular ve nötr tonlar; Akdeniz’in dingin atmosferini yansıtırken, çağdaş bir estetik anlayış da sunmaktadır. Sosyal alanlar, havuz kenarı yaşamı ve yeşil peyzaj düzenlemeleri, misafirler ve sakinler için hem dinlenme hem de sosyalleşme imkânı yaratır.

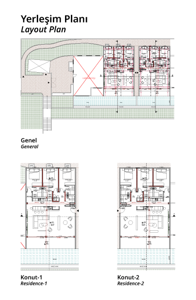
Özel teraslar, manzaraya açılan geniş oturma alanları ve modern mutfak düzenleri, kullanıcıların günlük yaşamını kolaylaştırırken, tatil konforunu da her an hissettirir.

Hizmet: Proje + Tasarım

İşveren: Ersan Hotel

Yer: Bodrum, Muğla, Türkiye

Alan: 650 m²

Yıl: 2021

Ege’nin dinginliğini modern yaşamın içine taşıyan bir adres…

Ersan Otel ve Rezidans, Ege’nin huzurlu atmosferini modern tasarım ve lüks yaşam standartlarıyla buluşturuyor. Geniş manzaralı teraslar, doğal dokularla zenginleşmiş iç mekânlar ve otel hizmetlerinin konforu bir arada.