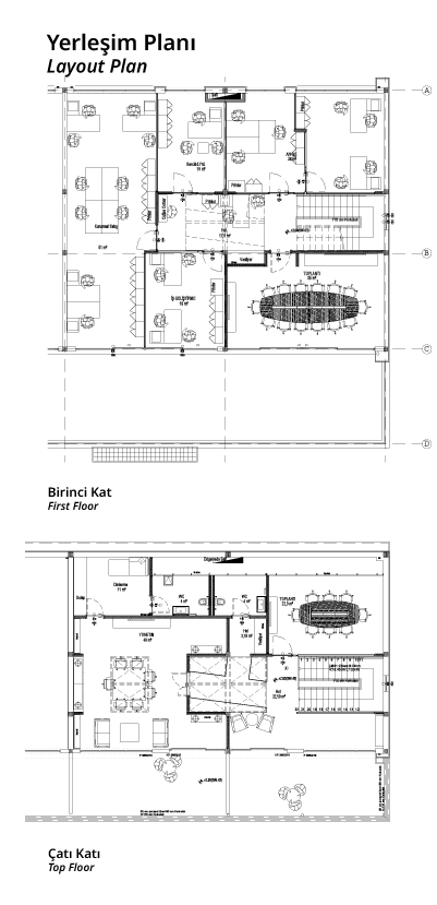
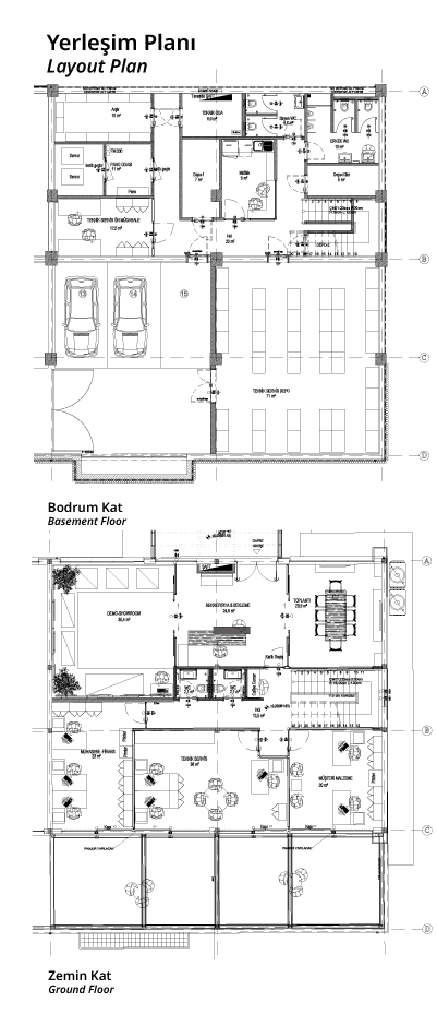
LİMEKS MERKEZ OFİSİ

Limeks Merkez Ofisi, çağdaş ofis yaşamını yeniden yorumlayan bir tasarım anlayışıyla hayata geçirilmiştir. Mekânda kullanılan cam bölmeler, açık ofis alanları ve doğal ışığı en verimli şekilde içeriye alan planlama sayesinde şeffaflık ve iletişim ön plana çıkarılmıştır. Ahşap dokuların sıcaklığı, metal detayların güçlü vurgusu ve modern aydınlatma elemanlarının dinamizmiyle dengelenmiştir. Çalışanların konforunu ve verimliliğini artırmayı hedefleyen bu ofis, aynı zamanda davetkâr bir karşılama alanı ve fonksiyonel toplantı odalarıyla kurumsal kimliğin güven veren yüzünü yansıtmaktadır. İç mekân düzeninde sürdürülebilir malzeme kullanımı ve ergonomik çözümlerle Limeks’in yenilikçi ve ileriye dönük vizyonu mekâna yansıtılmıştır.

Hizmet: Proje + Tasarım + İnşaat

İşveren: Limeks

Yer: Ankara, Türkiye

Alan: 1.400 m²

Yıl: 2017

Kurumsal kimliği güçlendiren, ilham veren bir mekân…

Doğal ışıkla beslenen, açık ve ferah kurgusuyla Limeks Merkez Ofisi, verimli bir çalışma ortamı sunuyor. Tasarım dili ise kurumsal kimliği güçlendirirken modern ofis yaşamına uyum sağlıyor.